设为首页
加入收藏
网站主页
公司简介
产品展示
脱硫系统
制粉系统
烟风煤粉管道零部件
料仓清堵设备
消音器
冷渣机
其它系列
企业荣誉
销售业绩
客户留言
人才建设
联系我们
脱硫系统
双挡板脱硫门
制粉系统
粗、细粉分离器
挡板分选器
旋风收尘器
烟风煤粉管道零部件
插板门
电动方风门
电动隔绝门
电动园风门
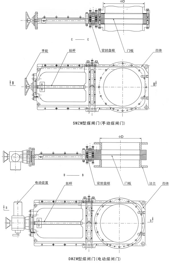
电动煤闸门
气动隔绝门
双插板气动隔绝门
单芯可调缩孔
双芯可调缩孔
电动木块分离器
非金属补偿器
金属补偿器
六道零部件
料仓清堵设备
空气炮
消音器
风机消声器
蒸汽消声器
冷渣机
其它系列
暖风器
手动滤水器
联系人:顾先生
电 话:0510–83579772
传 真:0510–83571509
E-mail:HXDLGS@163.com
网 址:www.wxhuaxi.com
地 址:江苏省无锡市堰桥镇堰盛路28号
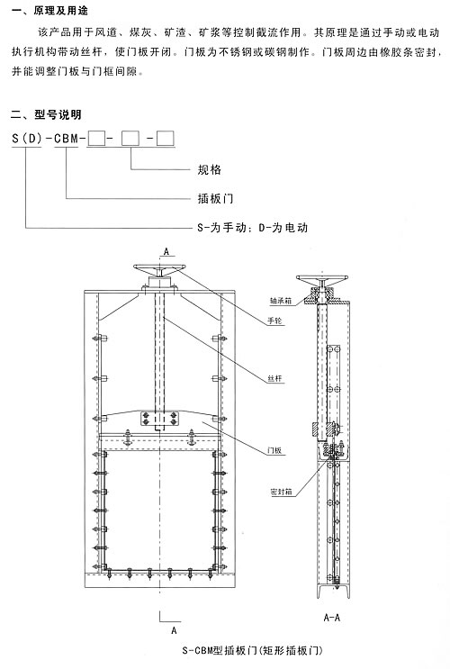
插板门
插板门
手动插板门
返回目录
相关产品:
电动方风门
电动隔绝门
电动园风门
电动煤闸门
气动隔绝门
版权所有© 2011 无锡华熙电力设备有限公司 技术支持:
华商科技
管理员入口